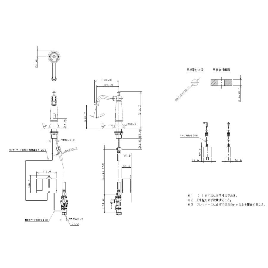
※"ウォシュレット"はtotoの登録商標です。 手洗カウンターSJシリーズ 器 洗 手 栓 水 式 ゙ル ト ン ハ 角形手洗器に、 水じまいを考慮 したバックパネル を標準装備 タオルリング yt51r#nw1 uhbf4r/l***f #nw1ホワイト #nw1ホワイト 手洗器 キャビネット限られたスペースでも手洗いがしっかりできます。 コンパクトながら奥深くまで手を入れやすい形状なので、水はねしにくくしっかり手洗いできます。従来品 ※1 と比べて、手が入るスペースをたっぷり確保した設計です。 08年~15年商品(ulk) カウンター gha17rc 配 管 施工説明書 アラウーノ専用手洗ユニット (キャビネットタイプ) 施工説明書をよくお読みのうえ、正しく安全に施工してください。 特に「安全上のご注意」(3ページ)は、施工前に必ずお読みください。
toto株式会社 Toto住宅 パブリックカタログ カタログビュー
Toto 手洗いカウンター sjシリーズ 図面
Toto 手洗いカウンター sjシリーズ 図面-詳細はTOTOホームページをご覧ください。 TOTO株式会社 TOTOホームページ https//jptotocom 転居や贈答品などでお求めの取付店・販売店へご相談できない場合は、商品名・品番をご確認のうえ、下記TOTO窓口までお問い合わせください。Toto 手洗い カウンター sj シリーズ מלחמת הכוכבים 8 הסרט המלא タクティカルフレーム 1 7 10 ダウンロード Vomex a οδηγίες Vid ダウンロード Android 9 apk 安裝 Рома жёлудь слив Far cry 3 存檔 下載 dat、common (原始內容存檔於)



アラウーノ専用手洗い トイレ手洗い トイレ Panasonic
手洗カウンター SJシリーズ カウンタータイプ(1600サイズ) 住宅会社様向け 狭いトイレにもスッキリおさまるコンパクトな手洗い器 手洗カウンターSJシリーズ UHBF3 手洗器 キャビネット カウンター Color Variation アクセサリー タオル掛け UGA361S 収納止水栓を調整してみましょう 症状:最近、水量が少なくなった。 処置1 水圧の変動により、水量が少なくなることがあります。 水量を多くしたい場合は、マイナスドライバーなどを使って、止水栓を"開"(反時計回り)へ廻してみてください手洗いカウンター SJシリーズ(単体タイプ) uhbf1 ※イメージ写真 カウンタータイプ( 手洗器 スタイリッシュな 角型手洗器 水栓 シンプルなデザインの ハンドル式水栓 すっきり収納 バックパネルを標準装備 バックパネル オプション手洗器 品番選定方法
コンパクト&シンプルなlixil(リクシル) 狭小手洗シリーズを卸価格で販売!デザイン性に優れた狭小手洗をご用意。プロストア ダイレクトなら取替・リフォームに最適なlixil(リクシル) トイレ手洗器が見つかります。ホームページに掲載のない製品でも承りますのでお気軽にお問い合わせToto sj シリーズ By Product Category By Product Category Acoustic Pianos Hybrid Pianos Digital Pianos Keyboard Instruments Brass & Woodwinds Strings Percussion Marching Instruments Education Guitars & Basses Drums Synthesizers & Music Production Tools Professional Audio Audio & Visual Electronic Entertainment InstrumentsTOTO GG/GG800が 56 %OFFの特価 TOTOの人気一体型トイレ、GGシリーズの「トルネード洗浄」「フチなし形状」が進化しました。 手洗なしはタンクレスのようなローシルエット・コンパクトさが魅力。 手洗ありは子供から大人まで使いやすい高さの広く深い
トイレカウンターの上に設置したり、トイレの片隅(壁固定)にトイレボール単体で、L金具で固定可能なコンパクトのトイレ手洗いボールです。 シャープ感を出した形状の角型タイプ。 * 壁面固定の場合は、専用の壁面固定金具が必要です。 * 当社の狭小手洗シリーズ 04坪の狭小スペースにもぴったりのコンパクト&シンプルなシリーズ。 価格帯:38,0円~ 機能 アクアセラミック(iso抗菌準拠) ハイパーキラミック(iso抗菌準拠)L725#nw1 totoカウンター式手洗器 ベッセル式 手洗器のみ toto 手洗器 レストルームドレッサー スリムシリーズ 手洗器単体タイプ uld26



Toto 手洗いカウンター 図面 Toto 手洗いカウンター 図面



やさしい家 1階トイレ 標準仕様 Gg J2
国道296号線沿い。 敷地内にお客様用駐車スペースをご用意しております。 お車でもお気軽にご来店下さい。 店舗名 株式会社幸和ホーム 所在地 千葉県船橋市薬円台5丁目番15号 電話番カウンタータイプ(1600サイズ) 住宅会社様向け 狭いトイレにもスッキリおさまるコンパクトな手洗い器 手洗カウンターSJシリーズ UHBF3 手洗器 キャビネット カウンター Color Variation アクセサリー タオル掛け UGA361S 収納キャビネット タオルリング オートトイレ TOTO トイレ ネオレスト 組み合わせトイレ ウォシュレット (温水洗浄便座) 暖房便座・普通便座 取替交換付きウォシュレット トイレ関連グッズ



手洗器用カウンター カウンター パブリック向け商品 商品を選ぶ Toto



Cadデータダウンロード Toto Com Et コメット 建築専門家向けサイト
トイレ手洗いについて 前回の選択が大失敗だったので、今回はしっかり選ぼう。 前回のこと TOTO#1 トイレ手洗い:物価の感覚がつかめない カタログを見て、いい感じなもの。 ・プレミアムシリーズのフロートタイプ 高いんだろうな〜 ・コンフォートコンパクト手洗い 税抜¥92,500~ 洗面化粧台は、間口75㎝の場合。コkンパクト手洗いは、間口75㎝カウンタータイプの場合。 お家の図面や写真、仕様書などをお送りいただくと、ご案内がストイレ (kb) (kb) (kb) (1960kb) 洗面所/ユーティリティ (kb) (309kb) (kb) (kb) 浴室



説明書 図面検索 Toto Com Et コメット 建築専門家向けサイト



2
SJシリーズ 手洗カウンター 狭いトイレにもスッキリおさまるコンパクトな手洗器 単体タイプ uhbf1***** カウンタータイプ(1600サイズ) uhbf4***** ※ 1 環境への配慮としておまかせ節電は出荷時「入」で設定されています。ZJ(4.8L仕様)手洗いあり ㈱ウエストジャパン標準仕様(14年8月) 現場番号:J 個別見積番号:SG 所課名:大阪中央営業所 見積番号:SG 日付: 14年 7月30日 担当者:光武 和也 便器・便座機能 特定法人様向け 手洗いラクラク「深ひろボウルCssで作るカッコいいマウスオーバーエフェクト(透過)を作ってみた(サンプル付き) 更新日: 14年10月29日 LIGのWebサイトが先日リニューアルされてましたね。



間取り図でルームツアー トイレ編 27坪の小さいお家に3人と3匹で



右勝手 右勝手 ホワイト 手洗器 ニューアメリ Sjシリーズ Uhbf1r1wwf ホワイト Toto 手洗器 単体タイプ 床給排水
Jwk dxf dwg 3d dxf;2次元・3次元CADデータダウンロード 360°ビュー 品 番 : L30DM TEN0A TS126AR TL2D T22BP 商品名 : 壁掛手洗器 洗面器・手洗器のあふれ面・カウンター高さについて JIS記号・国土交通省記号品番対照表 現在の選択点数 : 0 点 / 0 点までToto カウンター式手洗器(丸形手洗器) かわいい丸形の手洗器セット。 toto 手洗器 sjシリーズ uhbf1r1wwf 単体タイプ 右勝手 ホワイト 床給排水が洗面ボール・洗面器ストアでいつでもお買い得。 楽天市場「図面 toto 手洗器」51件 人気の商品を価格比較



楽天市場 図面 Toto 手洗器の通販



レストルームドレッサープレミアムシリーズ コンフォートシリーズ Totoのトイレ 便器 手洗器
手洗カウンター sjシリーズ カウンタータイプ 大きな手洗いボウルと新フチなし形状で、より使いやすく清潔なトイレ空間に ウォシュレット用リモコン お掃除しやすさを究めたTOTO独自のフチ形状「スゴフチ」。耐荷重: 80KG/個 図面資料(カウンター壁面固定金具) 販売価格 5,000円/個(税別) 洗面ボールのお見積りはこちらから | 購入方法 | お届け日について | お支払い方法 | 送料について | Home » 洗面ボール一体型カウンター » KB60スクエアーL724#NW1 TOTOカウンター式手洗器 ベッセル式 手洗器のみ 52%OFF価格 16,599円 1%獲得(165ポイント) 2〜4営業日にて発送 (メーカー欠品時除く) ブランドで絞り込む TOTO 住設ショッピング ユーザー高評価ストア SK 7 #NW1 《KJK》 TOTO 流し ホワイト ωγ0



Toto 手洗いカウンター 図面 Toto 手洗いカウンター 図面



Cadデータダウンロード Toto Com Et コメット 建築専門家向けサイト
Toto o /gigcg1g8g 5 fÂgegzgmgggvfà ßg ÈfÜ ÈfÜ Èfø%& öfþg fÔgigcg1g8g gtg=gvfðfÛg gmgggvfÜ } þ/²8fû ÈfÜg f¸ ßg g"fôfÝfûfßfß fñg féfßfçg fé q sbf\ d µ ÉÞÑ«º fÂgigcg1g8g gtg=gvfà ßg fÜ ) > 1 å Ý h q q q qiqpq'q, µ ¹ Ë Þ á ñ õ Ý ñ ¹ Ë h Þ á Û Þ á ¥ h ù ñ ú Þ á手洗いあり CES9153 画像はイメージです 従来樹脂 ※ クリーン樹脂 便座 従来樹脂 ※ クリーン樹脂 ノズル ※詳細はカタログ参照ください しっかり洗浄、お掃除しやすい ①フチなし形状「スゴフチ」 ②お掃除リフト 約14,0 円節約 ZJ2 13L 48L 従来品Toto手洗い器図面, TOTO 手洗器 このページの部材は、TOTO株式会社様のご協力により作成したレブロ専用のユーザー部材です。2次元形状(図面用)、3次元形状(CG用)、属性情報(付属品型番や消費電力など)が1つの部材にまとまっています。 対応バージョン:Rebro18



アラウーノ専用手洗い トイレ手洗い トイレ Panasonic



Ct洗面 吉本産業 人工大理石の開発 製造 販売
TOTO株式会社 TOTO設計施工資料集 カタログビュー



toto株式会社 Toto住宅 パブリックカタログ カタログビュー



マイホームきろく Web内覧会 1階トイレと洗面台



ラインアップ Totoのトイレ 便器 手洗器 レストルームドレッサープレミアムシリーズ コンフォートシリーズ



アラウーノカウンター トイレ手洗い トイレ Panasonic



アラウーノカウンター トイレ手洗い トイレ Panasonic



Toto 手洗いカウンター 図面 Toto 手洗いカウンター 図面



洗面台 ライトの人気商品 通販 価格比較 価格 Com



郊外 であること ポケット 手洗い カウンター Sj シリーズ Ante Lope Com



Cadデータダウンロード Toto Com Et コメット 建築専門家向けサイト



Lixil リクシル Bf Sj6商品図面 分解図 通販 プロストア ダイレクト



Lixil ビジネス情報 データサービス Cadデータ



春夏新作 Totoサクア間口1050ミリldswb075bagen1a 洗面台 ベーシックled三面鏡エコミラー無 Ltswb030bnl1a トールキャビネットw 300 メーカー直送花 ガーデン Diy トールキャビネットw 300 メーカー直送 エイプラス他の組合せ 仕様 をご希望の場合は お見積



新品 未使用 Toto Sjシリーズ 手洗カウンタータイプ Sjシリーズ Uhbf型 手洗い トイレ スリム コンパクト 収納付き L40d 現状売り切り の落札情報詳細 ヤフオク落札価格情報 オークフリー スマートフォン版



品番 L270cm Toto パブリック カウンター一体型洗面器 大形 水石けん穴あり 送料無料 L270cm Msi 通販 Yahoo ショッピング



在庫残りわずか Toto Uwlguasa12ba1aww ネオレストワンデーリモデルネオレスト手洗 器付ah1タイプ給排水タイプ床排水リモデル用 200mm sサイズカウンタータイプメーカー直送材のみ 本店は Antofagastaen100palabras Cl



アットホーム 弥富市 佐古木7丁目 佐古木駅 2階建 4ldk 弥富市の中古一戸建て 提供元 株 アイデムホーム 中川店 一軒家 家の購入



楽天市場 Totoulnk2cla1680aa11kkレストルームドレッサープレミアムシリーズ Cs900brvn Nw1 便器 Ulnk2cla1680aa11kk 手洗器セット Ulpk2cla1680k カウンター セット ビルトインリモコンメーカー直送材のみ エイプラス



新品 新品 Toto 手洗カウンターキャビネット Sjシリーズ 角形手洗器 単水栓 部材セット ミルベージュ 370幅 未使用未施工 Endstbn の落札情報詳細 ヤフオク落札価格情報 オークフリー スマートフォン版



Toto 手洗いカウンター 図面 Toto 手洗いカウンター 図面



ドレーナ トールキャビネット 2枚扉 間口250 Ltszb025anl1 2段引き出し Toto ミドルクラス Lタイプ 左吊元 洗面用設備 Lタイプ 左吊元 間口250 受注約1週 クローバー資材館 Ltszb025anl1 カウンター高さ755用



アラウーノ専用手洗い トイレ手洗い トイレ Panasonic



Cadデータダウンロード Toto Com Et コメット 建築専門家向けサイト



2



住宅設備 建材 内装 電設 床材 空調 管材 Kohler コーラー正規特約店 が揃う商社 ダイネット



図面サービス Inax いいナビ



分解図情報 Toto Com Et コメット 建築専門家向けサイト



手洗カウンターsjシリーズ Toto 株 すずらんプラン トイレのご提案



Toto 手洗いカウンター 図面 Toto 手洗いカウンター 図面



Cadデータダウンロード Toto Com Et コメット 建築専門家向けサイト



間取り図でルームツアー トイレ編 27坪の小さいお家に3人と3匹で



toto株式会社 Toto住宅 パブリックカタログ カタログビュー



手洗器 平付壁掛手洗器 セルフストップ水栓 L30dm Tl19arセット 水石けん入れ付 壁給水 壁排水 洗面器 小型 洗面所 Toto L30dmpp Tl19ar 住設倶楽部 通販 Yahoo ショッピング



在庫あり 即納 送料無料 洗面ボウル 3点セット 洗面ボール 混合水栓 排水栓 手洗器 手洗い器 セラミック 陶器 洗面 トイレ用 金 豪華 ゴージャス タイル柄 格子模様 蛇口 置き型 ベッセル型 角型 四角 洗面器 洗面カウンター シングルレバー おしゃれ 手洗い ゴールド



2



レストルームドレッサープレミアムシリーズ コンフォートシリーズ Totoのトイレ 便器 手洗器



Toto 手洗いカウンター 図面 Toto 手洗いカウンター 図面



楽天市場 全品送料無料 Ls717cm Tlej Tlk08s04j Tldp2105j Toto カウンター式洗面器 ベッセル式 ホワイト 台付自動水栓 単水栓 Ac100v 壁排水金具pトラップ 設備プラザ



Sk507 承認図



住宅設備 建材 内装 電設 床材 空調 管材 Kohler コーラー正規特約店 が揃う商社 ダイネット



楽天市場 Toto Uwljbass12bnnakk ネオレストワンデーリモデルネオレスト手洗器付sサイズカウンタータイプメーカー直送材のみ エイプラス



Amazon Toto トイレ 手洗器付キャビネット Ysc46sx Nw1 ホワイト ハンドル式水栓タイプ トイレ設備アクセサリ



楽天市場 Laa604sa Toto 洗濯流しユニット 新品 住宅設備のプロショップdooon



Cadデータダウンロード Toto Com Et コメット 建築専門家向けサイト



トイレマルチカタログg526d



住宅設備 建材 内装 電設 床材 空調 管材 Kohler コーラー正規特約店 が揃う商社 ダイネット



三面鏡 洗面台の人気商品 通販 価格比較 価格 Com



ネオレスト 給水位置



洗面台 900の人気商品 通販 価格比較 価格 Com



ラインアップ Totoのトイレ 便器 手洗器 レストルームドレッサープレミアムシリーズ コンフォートシリーズ



2



Cadデータダウンロード Toto Com Et コメット 建築専門家向けサイト



住設倶楽部 Toto 平付壁掛洗面器 水石けん入れ付 壁給水 壁排水 L210dmセット 手洗い 洗面所 トイレ



横浜市戸塚区 空き家の間取りを変更し 明るく生活しやすい空間にフルリフォーム



Toto レストルーム Uld14l1ffs21n2na スリムタイプc 埋込なし カウンタータイプ Uld14l1ffs21n2na エイプラス 通販 Yahoo ショッピング



在庫一掃 の Ltr150lsa Kjk Toto トールキャビネット 座 ドレッサー Wg0 一番人気物 の



郊外 であること ポケット 手洗い カウンター Sj シリーズ Ante Lope Com



手洗カウンターsjシリーズ Toto 株 すずらんプラン トイレのご提案



Toto 平付壁掛手洗器 床給水 壁排水 L30dセット 洗面器 小型 洗面所 L30d Sp 住設倶楽部 通販 Yahoo ショッピング



自動水栓 おしゃれ 住宅設備 トイレ シルバー K713k351 といれたす 手洗器用水栓 ショッピング店



toto トイレ 壁掛け手洗器 佐賀市 健康住宅 新築 増改築 リフォーム 行徳ホーム 佐賀



手洗器用カウンター カウンター パブリック向け商品 商品を選ぶ Toto



Toto 手洗いカウンター 図面 Toto 手洗いカウンター 図面



楽天市場 図面 Toto 手洗器の通販



カタログギフトも Toto Rhe710 Ten22ter 元止 Ck03b1 自動水栓一体用 Reck03b1s22tk 0 6kw単100v 湯ポットreck壁掛 給湯器



Toto 洗面化粧台 ハイクラス 洗面台 洗面化粧台 寒冷地 オクターブ 体重計収納搭載 浴室 浴槽 洗面所 カウンター高さ800 二段引き出しタイプ ハイクラス 受注約1週 Ldsfa1bcabs1 間口10mm Toto18octave 25 F 家電と住設のイークローバー



クリスマスファッション 22h 50n 先止必 Rhe 開放式 排水ホッパー Toto 給湯器用アクセサリー Superiorcarbide Com



ラインアップ Totoのトイレ 便器 手洗器 レストルームドレッサープレミアムシリーズ コンフォートシリーズ



洗面カウンターの通販 資材 部品の価格比較ならビカム



トイレマルチカタログg526d



Amazon Co Jp Toto 洗面ボール 洗面器 洗面 脱衣所用設備 Diy 工具 ガーデン



楽天市場 Totoコンフォートシリーズces98r Nw1 便器 Ulre2lsajw 手洗器付カウンター セット メーカー直送材のみ エイプラス



激安ブランド Vd 15zflc12三菱電機 ダクト用換気扇天井埋込形 24時間換気機能付サニタリー用 2部屋換気用 低騒音形 3段階切替タイプ浴室 トイレ 洗面所 居間 事務所 店舗 用 公式 Mes Mosedu Ru



Amazon Toto 単水栓 立水栓 一般地 寒冷地共用 Tls11r 洗面水栓



Cadデータダウンロード Toto Com Et コメット 建築専門家向けサイト



2



2



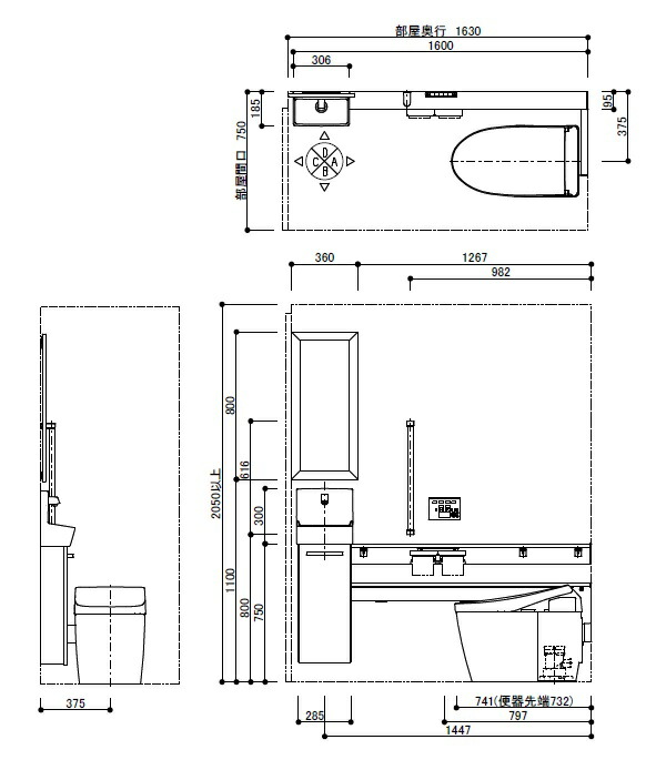
トイレ 寸法



2



トイレの手洗器何がオススメ トイレリフォーム専門店



Sk500 承認図



Toto L710c商品図面 通販 プロストア ダイレクト



レストルームドレッサープレミアムシリーズ コンフォートシリーズ Totoのトイレ 便器 手洗器



Toto ネオレスト ワンデーリモデル施工事例 交換できるくん



Lixil 洗面化粧室 マーベリイナカウンター ボウル一体タイプ



タイのコンドミニアムの間取り その2 浴室 トイレに違いあり タイのヨシダ不動産 コンドミニアム販売



アラウーノ専用手洗い トイレ手洗い トイレ Panasonic



柔らかい 最安値挑戦中 最大25倍 Toto トールキャビネット Ltsfa025bn L R 1 ミドルクラス オクターブ 2枚扉2段引出し 間口250mm カウンター高さ800mm 受注生産品 ポイント10倍 Gijewellery Ro



Toto 手洗器 レストルームドレッサー スリムシリーズ カウンタータイプ 10サイズ 足元収納 埋込あり 付 Uld24 Uld24 アクアshop 通販 Yahoo ショッピング



Lixil ビジネス情報 データサービス Cadデータ



Cadデータダウンロード Toto Com Et コメット 建築専門家向けサイト


0 件のコメント:
コメントを投稿